Home
News
Sport
What’s On
Send your story
Public Notices
Jobs
Subscription
More
Property
Plans unveiled for new village designed to tackle housing crisis
Piece of town's history is up for auction
Commercial property in car park used by beach-goers is up for auction
Prominent commercial property to go under the hammer
South West Water launches new campaign to fight fatbergs
Councillor opens new development launched in Padstow
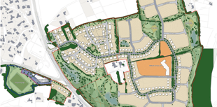
Housebuilder plans 550 new homes for town
'Golden age of property investment in South England is over '
UK councils sit on empty buildings amid housing crisis
Consisting of 17 teams, ranging from Under 8s to Under 18s, the volunteer-run club has 300 children playing in mixed and girls teams
HMRC warns homebuyers about stamp duty scams
Councillor reveals reasons for town's empty council houses
Majority of rural councils have no targets for social housing
Luxury housing development taking shape around a mile from the sea
Veteran appointed in top role at regional housebuilder
Cornish housing group among UK’s top home builders
Less desire to move to coastal areas among first-time buyers
Homeshare service offers companionship and housing support
Charity calls for more residents to open their homes and hearts
Debbie says the property market in Cornwall has been decimated by the rise in stamp duty on second homes and a doubling of council tax
Cornwall heat pump manufacturer announces new national partnership
Homeowners favour 'improve, not move' trend amid rising costs
Housebuilder backs Cornwall runner's charity challenge
Cornwall Community Foundation launches appeal to reduce homelessness
South West young adults return home amid housing crisis
Rural households concerned about switching to greener heating
Owned or licensed to Tindle Newspapers Ltd. | Independent Family-Owned Newspapers | Copyright & Trade Mark Notice & 2013 - 2025