Home
News
Sport
What’s On
Send your story
Public Notices
Jobs
Subscription
More
Police seek help after Bodmin trailer theft
Equine therapy centre seeks support after storm devastates barn
Quiet meet up for introverts
Camel Trail closures in February and March
Students' entrepreneurial fires lit by Dragon's Den contestant visit
Entertainment
NCB Radio: 'Proper music for proper people' since 2011
999
Investigation launched after organised crime gang raid properties
Persistent Bodmin criminal arrested again despite banning order
Camel Viaduct project faces delays
The Bodmin Wassail, a 402-year-old tradition, fundraises while touring the town
NCB Radio: 15 years of broadcasting and still 'alive and kicking'
Bodmin's Fore Street to close for Christmas light removal
Two vehicles involved in Bodmin collision amid 'black ice' warnings
Cornwall Council state 'concerns' over impact of distillery plans
Wadebridge's festive cheer at Betjeman Centre
Firefighter celebrates 10 years of saving lives
North Cornwall Hunt raise money at Royal Cornwall Showground
Historic Cornish event returns to Bodmin
Planning
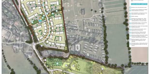
More than 120 'affordable' homes approved by Cornwall Council
The proposals will see 71 extra care flats on Cornwall Council owned land near to the Bodmin Beacon nature reserve
Five arrested for national cable thefts
Cornwall Council to decide on own proposal for extra care housing
Church to host magical evening of festive music
Works planned to remedy structural concerns at historic bridge
A39 near Wadebridge closed after two vehicle collision
Police seek public's help to locate man missing from the Bodmin area
Owned or licensed to Tindle Newspapers Ltd. | Independent Family-Owned Newspapers | Copyright & Trade Mark Notice & 2013 - 2026