PRELIMINARY plans for 34 new properties on land near Looe have been submitted to Cornwall Council.
Pre-application advice is being sought for the construction of 34 houses and flats on agricultural land in a village near Looe. CPC Planning Consultants Limited has prepared a statement on behalf of applicant Lydcott Developments Limited for a possible housing development off Lydcott Lane at Widegates, a village of around 500 residents in the parish of Morval.
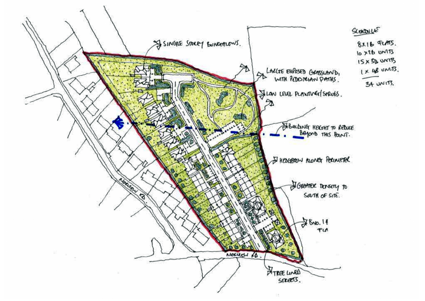
The pre-application enquiry proposes eight one-bedroom flats, ten two-bedroom houses, 15 three-bedroom houses and one four-bedroom house. The existing access off Lydcott Lane is proposed to be centralised and widened in order to accommodate the increase in traffic and to provide adequate visibility at the entrance.
The proposal provides a large area of public open space to the north east of the site, which would be used to enhance the visual impact of the proposed development, and to provide biodiversity net gain. This space would be gifted to the parish council and local residents.
The pre-app promotes the proposal as a ‘rural exception site’, meaning that the majority of the proposed housing will be delivered on affordable tenures. The exact tenure mix is to be decided by a financial viability appraisal at the full planning application stage.
In the pre-application advice enquiry, the applicants said: “The site comprises a sloping agricultural grassed field west of Widegates, a settlement in south east Cornwall. Widegates is a small village with many bungalows, built during the 20th century at the crossroads of two routes travelling down to the Seaton River Valley (to the south east) and Looe (to the west).
“The settlement is in the countryside, high up on a plateau, looking south towards a steep-sided wooded river valley extending to the coast. From the site, the properties in Widegates overlook the site, and the western edge of the site is defined by rear garden boundaries that represent a settlement edge to Widegates.
“The development will comprise a housing development along a road the is north/south axis. Details as follows: 34 units of an undisclosed tenure mix, a majority of the units as bungalows.
“Two storey dwellings will be included, with a minimum of 10 to 12-metre-deep rear gardens. A small, flatted development is included to provide one-bedroom units, there is a local need for these.
“One parcels of land gifted to the parish and extensive landscape buffers and vegetation included around the site boundaries in addition to a central pond and landscaped area.”
A decision will be made either by Cornwall Council’s planning department or by committee on a future date. For more details on the application, PA23/01310/PREAPP, at https://planning.cornwall.gov.uk/online-applications/applicationDetails.do?keyVal=S4290CFG0JW00&activeTab=summary

.jpeg?width=209&height=140&crop=209:145,smart&quality=75)



Comments
This article has no comments yet. Be the first to leave a comment.