EACH week, hundreds of planning applications come before Cornwall Council’s planning department, seeking to win approval for various plans right across the Duchy.
These plans can comprise of a number of different reasonings– ranging from permission to replace windows or listed building consent ranging up to large house building developments or changing of use of a building, for instance, from an office to a café, or flats.
Within this large and often complex system, there are a number of formats from which planning advice and approval can be sought.
These range from full applications where all the details which comprise a proposed development or work to a building are submitted, to outline applications, where further details are yet to be confirmed, for example, an outline application with reserved matters for appearance may not confirm the final proposed development but rather seek permission in principle.
An example of this is one for an outline permission for 20 dwellings on land with reserved matters for appearance and scale; the reserved matters would require further permission later for their inclusion.
Other types of applications include pre-application advice requests, where would-be developers submit often outline proposals to a local authority to ascertain whether it is likely to gain support or not prior to submitting a planning application.
The vast majority of applications are decided by planning officers employed by a local authority under ‘delegated powers’, meaning they do so on behalf of their employer, however, some applications are ‘called in’ by local councillors to be discussed at an area’s strategic planning committee meeting, meaning the final decision rests with a committee of councillors.
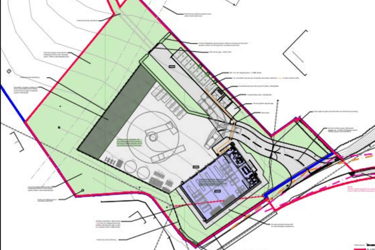
Development of new storage building refused
PA24/01169: Proposals for the development of a new storage building and associated parking and set down area in Trerulefoot has been refused by Cornwall Council.
The local authority’s planning department received an application from Mr Daniel James, Mr Jonathan Jagger and Mrs Lisa Jagger for planning permission for the proposals at Broadacre Development, Trerulefoot.
The proposal were described as thus: “This application refers to a parcel of land located to the west of Trerulefoot roundabout and adjacent to an existing service station located just off the A38 highway. Away from Trerulefoot and the roundabout, the surrounding area is largely rural and agricultural with undulating topography. The site is comprised of Grade 2 agricultural land and forms part of a wider field in an area designated as an Area of Great Landscape Value (AGLV).
“Access is to the north west of the site however it is understood that this requires crossing privately owned land. A further access to the north is identified within the submitted documents however this is likely to be a historic field access rather than a currently functional access point with no evidence seen when visiting the site.
“Approval is sought for the development of a new storage building and associated parking and set down area for use by a construction/utilities business.”
However the proposals, on a site where previous proposed developments had been refused amid concerns over the impact it would have on neighbouring developments and amenities in the area, were met with concern over similar.
St Germans Parish Council, who in its position as the parish council for the area of the proposed site is a mandatory consultee, issued an objection. In the objection, they stated: “The parish council OBJECT to this application for the following reasons:- 1) it is a green field site, used for agriculture in an area of great landscape value, and not an appropriate site for industrial use.
“The increase in traffic for 16 light goods vehicles and deliveries of plant and materials is going to add to the difficulties at the A38 Trerulefoot roundabout.
“This would also add to the traffic flow through Tideford. extra light pollution, in addition to that already being created by the neighbouring service station and restaurant would increase the impact that can already be seen from a wide area.
The position of the site in not appropriate given the effect this would have on the neighbouring property Fairfield. The noise from an industrial business would impact on the local area.
“There is currently a narrow access to the east of the field, already used by numerous lorries and tractors and there is very little room for any more traffic even if the road was widened. This road has a footpath running across it to meet the A38.
“The plans show a track to the west of the site running across an adjoining field, leading onto the A38. It would be dangerous to use this track as an access or exit point given its proximity to the Trerulefoot roundabout, the service station and the Menheniot / Bethany turning immediately opposite.”

There were nine objections from members of the public to the proposal, while there were also eight statements of support leading to a near-equilibrium between those for and against the proposals.
Ms Emma Forde, one of those who supported the plans, said: “I support this application.
“Local businesses who employ local people are to be supported in their efforts to remain sustainable.
“The application is on land well within the vicinity of a 24 hour fuel station and shop with a busy restaurant adjacent, therefore the argument suggesting excess noise and light pollution seems redundant.”
Public Protection Noise and Odour Planning Consultations, said: “I note that there will be vehicular movements through the night as well as the cited 'hotbox tipper' early morning departures at 06:30 and the deliveries commencing from 07:00, as such vehicular movements would be of concern given the proximity of residents and the sensitive times involved.
I appreciate there is various external artificial lighting proposed but I cannot be assured there will be no nuisance to the residents from any such in the absence of a professional report.”
Refusing the application, the local authority told the applicant: “By reason of the site location, isolated from settlements of major population and lacking adequate public transport options, and size of the proposed development for the construction of an industrial building and storage yard, in the absence of any overriding locational or business need for the development to be sited in this position, the proposal is not considered to represent a sustainable form of development.
Moreover, the development would introduce an extensive area of hardstanding and built form within a largely rural setting at an inappropriate scale relative to the setting. The development would erode the existing pattern of development, causing material harm to the prevailing character and landscape qualities of the Area of Great Landscape Value as well as resulting in the loss of grade two Agricultural Land.
“The development is contrary to policies of the Cornwall Local Plan Strategic Policies 2010 - 2030 (adopted November 2016), policies of the Climate Emergency Development Plan Document 2023 and paragraphs 8, 89 and 135 of the National Planning Policy Framework 2023.
“The submitted application does not include evidence of suitably comprehensive noise impact assessment that refers specifically to the proposed uses of the development. In the absence of this information and due to the close proximity of neighbouring residential properties (Fairfield and Ridge House), in combination with the nature of the proposed development, that being a parking, set down area and storage yard/building for a business that includes out of hours call outs, it cannot be concluded that the proposal would not adversely impact the amenities of neighbouring properties and would therefore be contrary to policies of the Cornwall Local Plan Strategic Policies 2010 - 2030 (adopted November 2016) and paragraph 191 of the National Planning Policy Framework 2023.”
Keep in touch with the latest planning applications and other statutory notices (such as alcohol licensing and probates) that affect where you live by visiting our online Public Notice Portal – be the first to know by visiting www.publicnoticeportal.uk/cornish-times-series.




Comments
This article has no comments yet. Be the first to leave a comment.